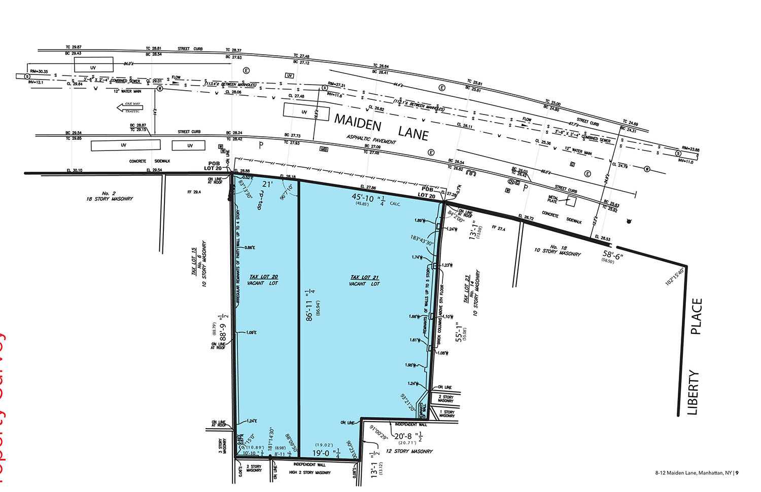
Northgate Real Estate Group has been exclusively retained to market 100% membership interest in 10-12 MLane, LLC, a New York limited liability company, which owns the fee interest in the properties known as 8 Maiden Lane, New York, New York 10038 and 10-12 Maiden Lane, New York, New York 10038 (the “Property”). Located between Broadway and Liberty Place, the Property spans approximately 5,131 square feet, with 66.42 feet of frontage along Maiden Lane and an average lot depth of 77.25 feet.
NOTICE OF PUBLIC SALE OF COLLATERAL
NOTICE IS HEREBY GIVEN that, in accordance with applicable provisions of the Uniform Commercial Code (the “UCC”), as enacted in the State of New York, by virtue of one or more Event(s) of Default under that certain Pledge and Security Agreement dated as of October 9, 2019 (the “Pledge Agreement”), executed and delivered by Liu Yun Chen, Yong Xiao Li, Zhou Min Ni, and Qiu Hui Lin (“Pledgor”) and under that that certain Loan Agreement dated October 9, 2019 (the “Loan Agreement”), and in accordance with its rights as holder of the security, Eight Ten NYC LLC (“Secured Party”), will offer for sale (the “Auction”), at public auction, all right, title, and interest of Liu Yun Chen, Yong Xiao Li, Zhou Min Ni, and Qiu Hui Lin (“Pledgor”), in and to 100% of the limited liability company membership interests, together with all ownership rights associated therewith, in and to 10-12 MLANE, LLC, a New York limited liability company (the “Collateral”). Secured Party’s understanding is that the principal asset of the pledged entity is that certain fee interest in real property commonly known as 8 Maiden Lane, New York, New York 10038 and 10-12 Maiden Lane, New York, New York 10038 (the “Property”).
The Auction will be held on June 25, 2026, at 11:00 a.m. EDT both in-person at the top of the front steps outside of the New York Supreme Court located at 60 Centre Street, New York, New York 10007, and remotely with access afforded via Zoom or other web-based video conferencing and/or telephonic conference program selected by Broker, access to which will be made available to qualified bidders. Mannion Auctions, LLC under the direction of Matthew D. Mannion, William E. Mannion and/or John O’Keefe will conduct the Auction.
Parties interested in bidding at the Auction may, subject to executing confidentiality agreements and meeting the bidder qualifications set forth in the bidding procedures (the “Bidding Procedures”), which can be obtained by contacting Broker as provided below, obtain additional information concerning the Collateral by contacting Broker. The Bidding Procedures provide additional information about the bidding process, including bidder qualifications, Auction participation and determination of the winning bid.
The Collateral will be sold on an “AS-IS, WHERE IS, WITH ALL FAULTS” basis, without recourse, and without and express or implied representations or warranties whatsoever including, without limitation, as to the condition of title, value, or quality of the Collateral or the Property, or without regard to assets, liabilities, financial condition, or earnings of the debtor or any of their affiliates. WITHOUT LIMITING THE GENERALITY OF THE FOREGOING, ALL WARRANTIES, WHETHER OF MERCHANTABILITY, FITNESS FOR A PARTICULAR PURPOSE, OR OTHERWISE, ARE EXPRESSLY DISCLAIMED. The sale of the Collateral is specifically subject to all taxes, liens, claims, assessments, liabilities and encumbrances, if any, that may exist against the Collateral under the UCC or other applicable law. Compliance with any requirements of the Securities Act of 1933, as amended, shall be at the sole risk, cost and expense of a prospective bidder. The Secured Party makes no representations or warranties and provides no assurances as to any Collateral. Prospective bidders should perform their own diligence as to the Collateral and may only purchase the Collateral in compliance with all applicable federal and state laws.
The Secured Party reserves the right to determine which bidders qualify for participation in the Auction, reject any bid or all bids at the Auction, to announce such other terms at the Auction as may be commercially reasonable in the Secured Party’s discretion or to accept non-conforming bids. Further, the Secured Party reserves the right to cancel, postpone, or adjourn the Auction by announcement made at the Auction, either before or after the commencement of bidding, without written notice. The Secured Party reserves the right to credit bid any portion of its secured indebtedness then outstanding under the Loan Agreement at the Auction.
All inquiries concerning the terms and conditions of the sale (including requirements to be a “qualified bidder”) should be made to: Northgate Real Estate Group (“Broker”), 1633 Broadway 46th Floor New York NY 10019, Attn: Greg Corbin, Tel. 212.369.1800, email Greg@northgatereg.com. Any person making any inquiry or request must: (i) disclose the person or entity on whose behalf such information is being sought, (ii) execute the confidentiality agreement, which will be provided upon request, and (iii) maintain the confidentiality of the information provided in accordance with the confidentiality agreement.
Property Owned by 10-12 MLANE, LLC*
Bid Deadline: Thursday, June 18th, 2026 at 5:00 p.m. EDT
Auction Date: Thursday, June 25th, 2026 at 11:00 a.m. EDT
Location: Both in-person outside of the New York Supreme Court, 60 Centre Street, New York, New York 10007
and remotely via Zoom or other web-based video conferencing and/or telephonic conference program.
Video conference and dial-in details will be provided to qualified bidders.
Full Terms of Sale Available Upon Request




Northgate Real Estate Group has been exclusively retained to market 100% membership interest in 10-12 MLane, LLC, a New York limited liability company, which owns the fee interest in the properties known as 8 Maiden Lane, New York, New York 10038 and 10-12 Maiden Lane, New York, New York 10038 (the “Property”). Located between Broadway and Liberty Place, the Property spans approximately 5,131 square feet, with 66.42 feet of frontage along Maiden Lane and an average lot depth of 77.25 feet.
NOTICE OF PUBLIC SALE OF COLLATERAL
NOTICE IS HEREBY GIVEN that, in accordance with applicable provisions of the Uniform Commercial Code (the “UCC”), as enacted in the State of New York, by virtue of one or more Event(s) of Default under that certain Pledge and Security Agreement dated as of October 9, 2019 (the “Pledge Agreement”), executed and delivered by Liu Yun Chen, Yong Xiao Li, Zhou Min Ni, and Qiu Hui Lin (“Pledgor”) and under that that certain Loan Agreement dated October 9, 2019 (the “Loan Agreement”), and in accordance with its rights as holder of the security, Eight Ten NYC LLC (“Secured Party”), will offer for sale (the “Auction”), at public auction, all right, title, and interest of Liu Yun Chen, Yong Xiao Li, Zhou Min Ni, and Qiu Hui Lin (“Pledgor”), in and to 100% of the limited liability company membership interests, together with all ownership rights associated therewith, in and to 10-12 MLANE, LLC, a New York limited liability company (the “Collateral”). Secured Party’s understanding is that the principal asset of the pledged entity is that certain fee interest in real property commonly known as 8 Maiden Lane, New York, New York 10038 and 10-12 Maiden Lane, New York, New York 10038 (the “Property”).
The Auction will be held on June 25, 2026, at 11:00 a.m. EDT both in-person at the top of the front steps outside of the New York Supreme Court located at 60 Centre Street, New York, New York 10007, and remotely with access afforded via Zoom or other web-based video conferencing and/or telephonic conference program selected by Broker, access to which will be made available to qualified bidders. Mannion Auctions, LLC under the direction of Matthew D. Mannion, William E. Mannion and/or John O’Keefe will conduct the Auction.
Parties interested in bidding at the Auction may, subject to executing confidentiality agreements and meeting the bidder qualifications set forth in the bidding procedures (the “Bidding Procedures”), which can be obtained by contacting Broker as provided below, obtain additional information concerning the Collateral by contacting Broker. The Bidding Procedures provide additional information about the bidding process, including bidder qualifications, Auction participation and determination of the winning bid.
The Collateral will be sold on an “AS-IS, WHERE IS, WITH ALL FAULTS” basis, without recourse, and without and express or implied representations or warranties whatsoever including, without limitation, as to the condition of title, value, or quality of the Collateral or the Property, or without regard to assets, liabilities, financial condition, or earnings of the debtor or any of their affiliates. WITHOUT LIMITING THE GENERALITY OF THE FOREGOING, ALL WARRANTIES, WHETHER OF MERCHANTABILITY, FITNESS FOR A PARTICULAR PURPOSE, OR OTHERWISE, ARE EXPRESSLY DISCLAIMED. The sale of the Collateral is specifically subject to all taxes, liens, claims, assessments, liabilities and encumbrances, if any, that may exist against the Collateral under the UCC or other applicable law. Compliance with any requirements of the Securities Act of 1933, as amended, shall be at the sole risk, cost and expense of a prospective bidder. The Secured Party makes no representations or warranties and provides no assurances as to any Collateral. Prospective bidders should perform their own diligence as to the Collateral and may only purchase the Collateral in compliance with all applicable federal and state laws.
The Secured Party reserves the right to determine which bidders qualify for participation in the Auction, reject any bid or all bids at the Auction, to announce such other terms at the Auction as may be commercially reasonable in the Secured Party’s discretion or to accept non-conforming bids. Further, the Secured Party reserves the right to cancel, postpone, or adjourn the Auction by announcement made at the Auction, either before or after the commencement of bidding, without written notice. The Secured Party reserves the right to credit bid any portion of its secured indebtedness then outstanding under the Loan Agreement at the Auction.
All inquiries concerning the terms and conditions of the sale (including requirements to be a “qualified bidder”) should be made to: Northgate Real Estate Group (“Broker”), 1633 Broadway 46th Floor New York NY 10019, Attn: Greg Corbin, Tel. 212.369.1800, email Greg@northgatereg.com. Any person making any inquiry or request must: (i) disclose the person or entity on whose behalf such information is being sought, (ii) execute the confidentiality agreement, which will be provided upon request, and (iii) maintain the confidentiality of the information provided in accordance with the confidentiality agreement.
©2026 Northgate Real Estate Group. All rights reserved.
Use the form below to contact us!














