Membership interest in a 200-room boutique hotel on the Lower East Side.
• 14-story, 200-key hotel in the Lower East Side on the border of Nolita
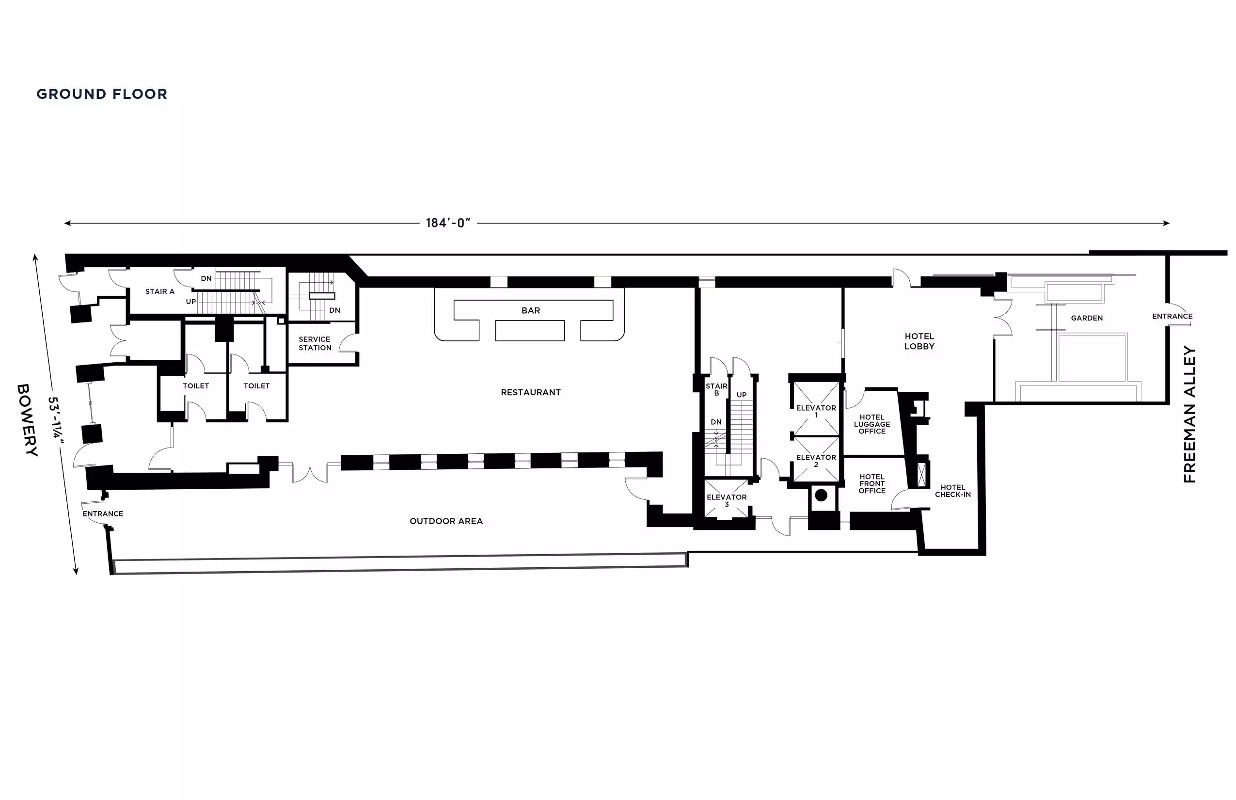
• The 63,599 SF building features a large restaurant space on the ground floor, a lobby garden, a lobby bar, a tattoo parlor, a fitness center, and a rooftop bar
• The dual terrace rooftop bar offering 360 degree views of the city for guests and private events
• The hotel has two entrances: Freeman Alley (off Rivington Street) and Bowery
• The hotel is fully compliant with NYC zoning rules and regulations and with its certificate of occupancy
• 10 year ICAP tax abatement in place, that started in 2019
• Exceptionally located, 50 feet from the New Museum and surrounded by the best of the Lower East Side and Nolita: Whole Foods, Camper, Supreme, CitizenM Hotel, The Bowery Ballroom, The Butcher’s Daughter, Credo and many more
• Short walk to Broadway-Lafayette St subway station (B, D, F, M) and the Bowery Station (J, Z)
Northgate Real Estate Group has been exclusively retained to market the collateral that is made up of 48% of the right, title, and interest of each of Northwind RE, LLP (“Northwind”), 225 Bowery Holdings LLC (“Bowery Holdings”), 225 Bowery Holdings II LLC (“Bowery Holdings II”), and 225 Bowery Pref Equity LLC (“Bowery Pref,” and together with Northwind, Bowery Holdings, and Bowery Holdings II, “Debtors”), in and to the common equity membership interest in VNAA LLC, a New York limited liability company (collectively, the “Collateral”). The Collateral represents less than 100% of the common equity membership interest in VNAA LLC, which in turn, owns less than 100% of the common equity membership interest in 225 Bowery Group LLC, a New York limited liability company, which in turn owns 100% of the common equity membership interest in 225 Bowery LLC, which owns the real property known as 223-225 Bowery, New York, New York 10002, upon which is currently situated a hotel.
Reference is further made to that certain side-letter agreement, dated as of March 1, 2019 (the “Side Letter”), by and between, among others, Debtors and Omnia Properties LLC (“Secured Party”).
Under the Side Letter, Debtors granted Secured Party a security interest in the Collateral to secure Debtors’ payment obligation of $7.5 million (the “Amount Due”) to Secured Party under the Side Letter. Secured Party perfected this security interest in the Collateral through the filing of UCC-1 financing statements, dated January 16, 2025, and January 23, 2025.
Debtors have failed to pay the full amount of the Amount Due to Secured Party, and the unpaid portion of the Amount Due is at least $3.6 million
Auction Date: Wednesday, April 23, 2025 at 3:00 PM EST




Membership interest in a 200-room boutique hotel on the Lower East Side.






©2025 Northgate Real Estate Group. All rights reserved.
Use the form below to contact us!
















