Overview
UCC Foreclosure Sale
200 Kent Avenue,
Brooklyn, NY 11249
Description
200 Kent Avenue is a Class-A mixed-use building with multilevel retail space, office, and a parking garage component in Williamsburg, Brooklyn. Designed by ME Architect P.C., the 135,611-square-foot development stands 83 feet tall. The site is bound by Kent Avenue to the east, Metropolitan Avenue to the south, River Street to the west, and North 3rd Street to the north.
Collateral Snapshot
- 135,611 SF Class-A mixed-use, “The TRADER JOE’S Building”
- Comprising an entire city block | 626’ of total frontage
- Recently constructed | 83’ tall | multi-level retail, office, and parking garage
- Floor to ceiling windows, 3rd floor outdoor terrace, and sprawling roof deck with sweeping views of the Manhattan and Brooklyn skylines
- Potential to utilize upper floors for a high-end restaurant, social club, or nightlife/event space with outdoor areas
- Retail space leased to Trader Joe’s through November 2034
- Proposed rezoning plan will allow for the 2nd floor parking to be used as a full floor community facility space
- Additional income from oversized billboard
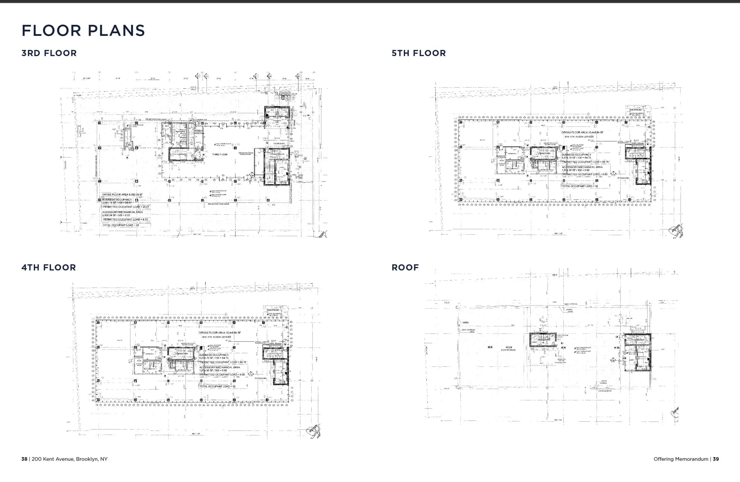
SPACE BREAKDOWN (gross):
- 22,585 SF: Sub-Cellar (Trader Joe’s)
- 22,585 SF: Cellar (40 Parking)
- 22,188 SF: Ground Floor Retail
- 22,585 SF: 2nd Floor (146 Parking)
- 5,069 SF: 3rd Floor Retail
- 14,735 SF: 3rd Floor Outdoor Space
- 12,932 SF: 4th Floor Office Space
- 12,932 SF: 5th Floor Office Space
- 6,000 SF (approx.): Rooftop Terrace
AREA DETAILS:
- Rare opportunity to own a piece of Prime Williamsburg Waterfront which is inthe midst of a $3 billion redevelopment. The Domino Sugar Refinery and other planned developments call for over 5,000 units and 800,000 square feet of waterfront parks, a beach, amphitheater, mini golf, boating cove, community and commercial space
- Short walk to North Williamsburg ferry terminal (1.6M annual riders)
- Close proximity to Bedford L train station which hosts 10M annual riders, the Brooklyn Queens Expressway / i278, and the Williamsburg Bridge
DATA ROOM AVAILABLE
ASKING PRICE: CALL FOR DETAILS
Auction Details
Bid Deadline: May 16, 2024 by 3:00 pm
Auction Date: May 20, 2024 at 3:30 pm
Documents 
3D Map

Tax Map

Zoning Map

Description
200 Kent Avenue is a Class-A mixed-use building with multilevel retail space, office, and a parking garage component in Williamsburg, Brooklyn. Designed by ME Architect P.C., the 135,611-square-foot development stands 83 feet tall. The site is bound by Kent Avenue to the east, Metropolitan Avenue to the south, River Street to the west, and North 3rd Street to the north.