Advanced Search

We found 0 results. View results

233 Hillspoint Rd,
Westport, CT 06880

For Sale

Overview

UCC Foreclosure Sale

233 Hillspoint Rd,
Westport, CT 06880

2 2,928 SF

Description

Two-story beachfront property in CT, featuring 4 bedrooms and 4.5 bathrooms.

Collateral Snapshot

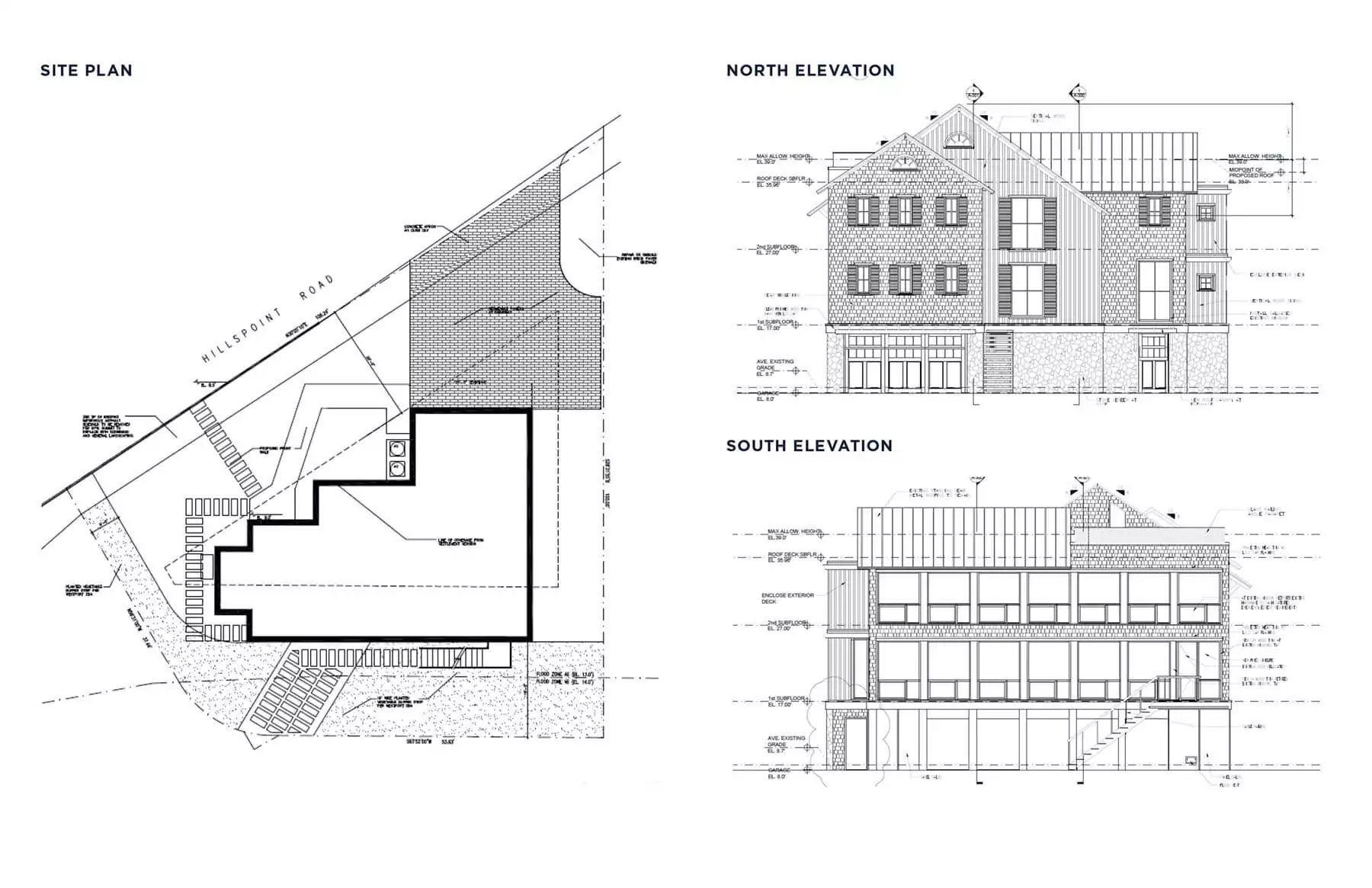
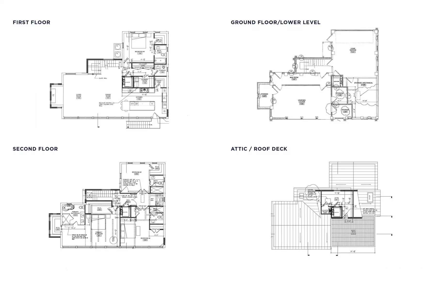
233 Hillspoint Road, Westport, CT, is a mid-construction single-family home that will feature 4 bedrooms and 4.5 bathrooms upon completion. This two-story beachfront property, equipped with an elevator, measures 2,928 square feet. Amenities include high ceilings, a two-car garage, a laundry room, storage space, a fireplace, and a roof deck.
PLEASE TAKE NOTICE that in accordance with applicable provisions of the Uniform Commercial Code as enacted in New York (“NY UCC”), Notice is hereby given that GLP 2206 LLC (“Secured Party”) will sell certain collateral, including without limitation, all the limited liability company interests in Summit Westport LLC (“Membership Interests”) held by James M. Pendry (“Debtor”) to the highest qualified bidder at a public sale in accordance with the NY UCC.

Auction Details

Auction Date: Thursday, October 23rd, 2025 at 10:00 AM

Documents

3D Map

  • Tax Map

  • Zoning Map

Description

Two-story beachfront property in CT, featuring 4 bedrooms and 4.5 bathrooms.

Property Id : 49326
Property Size: 2 ft2

Reviews

zzz
Write a Review
Your Rating & Review

Similar Listings

13
UCC Foreclosure Sale
For Sale

3-50 St Nicholas Avenue

100% membership interests in LLC owning the fee & leasehold interest. The sale is of t ...
17 252,850 SF
17
UCC Foreclosure Sale
Closed

460 West 20th Street, New York, NY 10011

100% membership interests in LLC owning the ground leased fee interest. The sale is of the ...
10,750 SF
17
UCC Foreclosure Sale
Closed

225 Bowery, New York, NY 10002

Membership interest in a 200-room boutique hotel on the Lower East Side.
15
user image
UCC Foreclosure Sale
Closed

50 Emmett Street

2-story, 205,128 GSF industrial building on 9.1 acres. It contains 9 units with 200 parkin ...
14
user image
UCC Foreclosure Sale
Closed

27 N Moore Street

The subject property consists of a ground-floor retail condominium unit within 27 North Mo ...
14 2,773 SF
15
user image
UCC Foreclosure Sale
Closed

80 Elizabeth Street, New York, NY

Prime corner retail condominium in Little Italy. Containing a total of 28,317 SF with 275 ...
28,317 SF
40
user image
UCC Foreclosure Sale
Closed

200 Kent Avenue

200 Kent Avenue is a Class-A mixed-use building with multilevel retail space, office, and ...
135,611 SF
7
user image
UCC Foreclosure Sale
Closed

14 East 82nd Street

Mansion retains its original grand scale and proportions with 16 rooms, 13+ foot ceilings, ...
6 9,490 SF
33
14
user image
UCC Foreclosure Sale
Closed

14 53rd Street

The Whale, located at 14 53rd Street in Sunset Park, Brooklyn, is a seven story 419,186 SF ...
5 419,186 SF
21
user image
UCC Foreclosure Sale
Closed

429 Kent Avenue

The Oosten is an 8-story structure occupying an entire 94,735 SF block bounded by Kent Ave ...
8 54,839 SF

Compare Listings