Advanced Search

We found 0 results. View results

70 Broad Street,
New York, NY 10004

Closed
$20,000,000

Overview

Bankruptcy Sale

70 Broad Street,
New York, NY 10004

Description

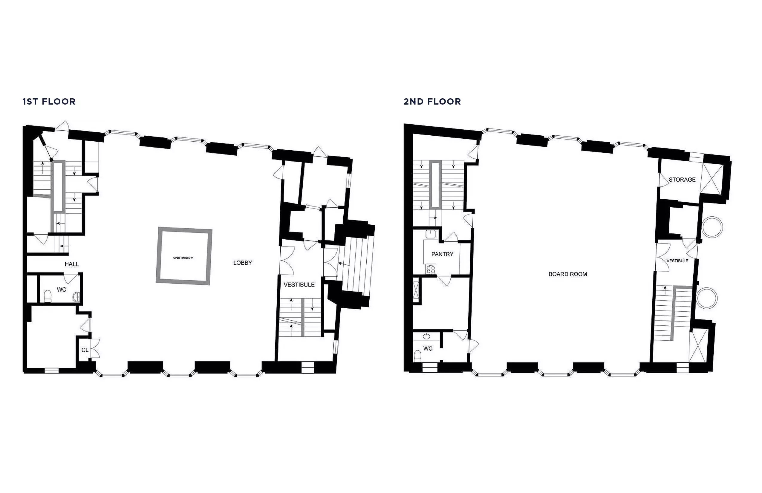
The property is a striking five-story, vacant mixed-use elevator building with multilevel commercial and residential space.

Property Snapshot

• Vacant, 5-story, 19,478 SF, mixed-use, corner elevator building located in the heart of the Financial District
• Three commercial spaces on the 1st floor, 2nd floor, and lower level. Three full-floor residential units on the 3rd, 4th, and 5th floors accessible by private elevator
• The property occupies the full blockfront along the west side of Broad Street between, Beaver Street, and Marketfield Street
• Flexible zoning allows for multiple uses, including office, residential, social club, retail, and hotel
• Special District: The Special Lower Manhattan District (LM) was established to enhance the vitality of Lower Manhattan, home of the city’s oldest central business district and a growing residential community.*
• An assumable loan is also available to qualified buyers at an attractive 4.169% rate

Auction Details

Bid Deadline: Friday, December 6th, 2024 at 5:00 p.m. (ET)
Auction Date: Friday, December 13th, 2024 at 11:00 a.m. (ET)
(Subject to Bankruptcy Court Approval)

Documents

3D Map

  • Tax Map

  • Zoning Map

Description

The property is a striking five-story, vacant mixed-use elevator building with multilevel commercial and residential space.

Property Id : 48176

Reviews

zzz
Write a Review
Your Rating & Review

Similar Listings

10
Bankruptcy Sale
Closed

143 Westchester Avenue

Prominent corner mixed-use building offering 8,100 SF in the heart of Port Chester’s prime ...
15
Bankruptcy Sale
For Sale

7614 4th Avenue, Brooklyn, NY

RESIDENTIAL DEVELOPMENT SITE up to 55,000 BSF | 90 Ft of Frontage | Direct Access to R Sub ...
35,000 BSF
14
Bankruptcy Sale
For Sale

3 Building Portfolio, Bronx, NY

3 Building portfolio located in the Bronx Portfolio Overview: A portfolio comprising one m ...
5 137,460 SF
9
Bankruptcy Sale
For Sale

2617 Foster Avenue, Brooklyn, NY 11210

Corner multifamily building in Brooklyn, featuring 14 residential units
13,400 SF
11
Bankruptcy Sale
For Sale

500 City Island Avenue, Bronx, NY 10464

Corner retail building with onsite parking and featuring 268’ of frontage
1 6,796 SF
11
Bankruptcy Sale
Closed

651 W 169th Street, New York, NY 10032

Corner mixed-use elevator building consisting of 21 residential units and 2 retail units.
15
user image
Bankruptcy Sale
Closed

4-6 Bleecker Street, New York, NY

7,593 SF mixed-use building located in the heart of prime Noho, NYC.
2
user image
Bankruptcy Sale
Closed

51-53 East 73rd Street, New York, NY

14,321 square foot mega-mansion with 35 feet of frontage, comprised of 13 free market apar ...
14,321 SF
2
user image
Bankruptcy Sale
Closed

41-31 Haight Street, Flushing, NY

The 11 buildings are situated on a 25,000 Sq. Ft. lot with 250’ of frontage and have a com ...
25,000 SF
23
user image
Bankruptcy Sale
Closed

9630 N 25th Avenue, Phoenix, AZ 85021

Northgate Real Estate Group is pleased to present the opportunity to purchase 9630 N 25th ...

Compare Listings