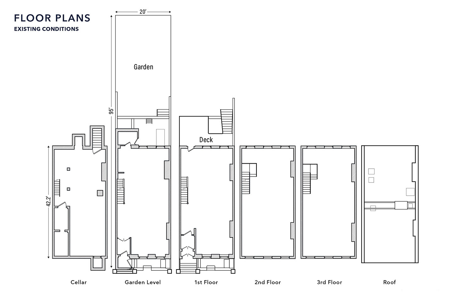
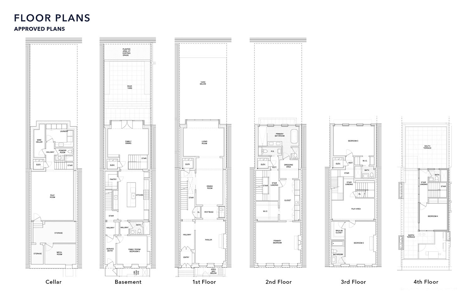
4,200SF Mid-Construction Townhouse in West Village
Bid Deadline: Monday, March 23rd, 2026 by 5:00 PM EST
Auction Date: Wednesday, March 25th, 2026 at 2:30 PM EST
Sale Subject to Bankruptcy Court Approval




4,200SF Mid-Construction Townhouse in West Village
©2026 Northgate Real Estate Group. All rights reserved.
Use the form below to contact us!










