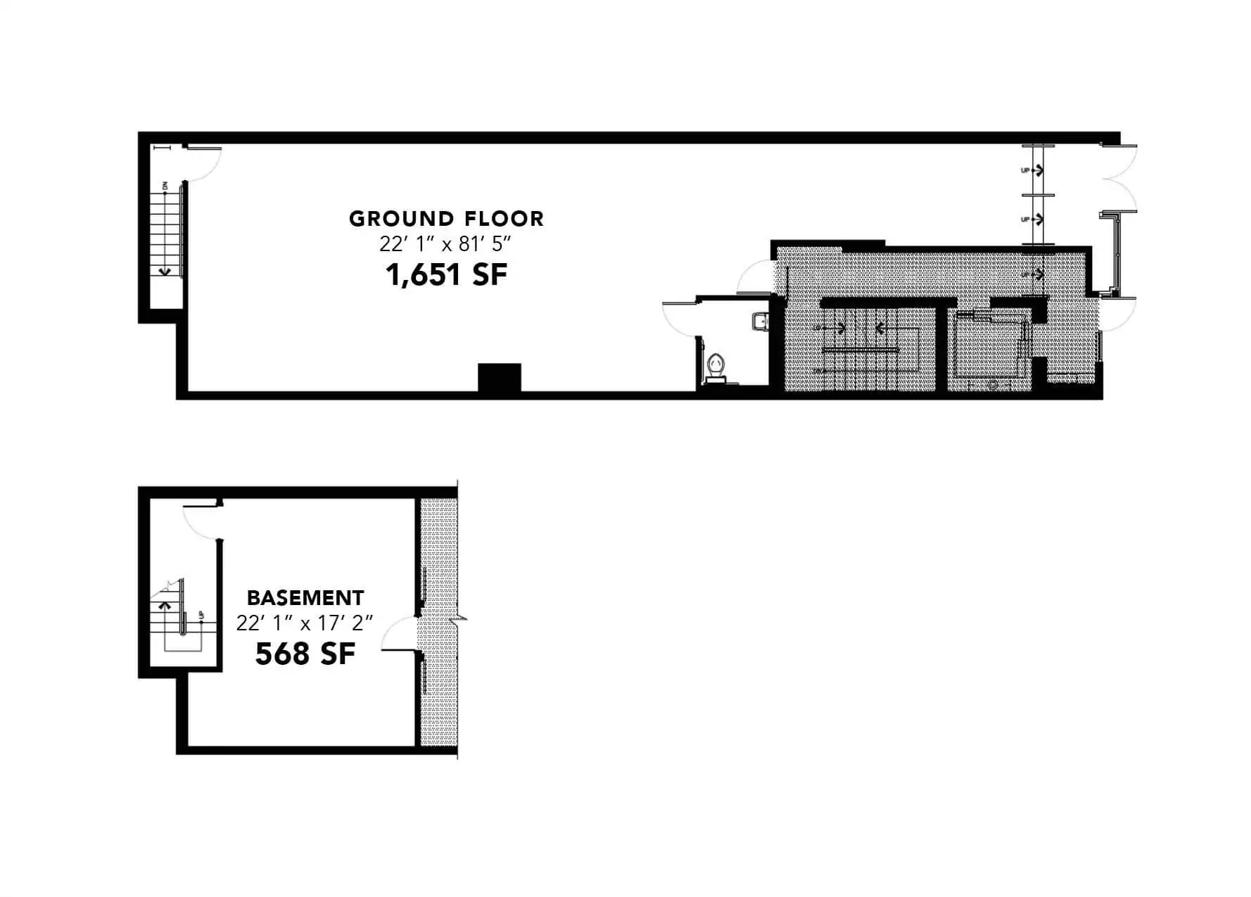
Vacant retail condo located at the base of a multi-million dollar luxury condominium. Featuring 1,651 SF on the ground floor and 568 SF in the basement.

Vacant retail condo located at the base of a multi-million dollar luxury condominium. Featuring 1,651 SF on the ground floor and 568 SF in the basement.
©2026 Northgate Real Estate Group. All rights reserved.
Use the form below to contact us!
















