Advanced Search

We found 0 results. View results

883 Bryant Avenue,
Bronx, NY

Closed
$3,900,000

Overview

Foreclosure Sale

883 Bryant Avenue,
Bronx, NY

8 25,523 SF

Description

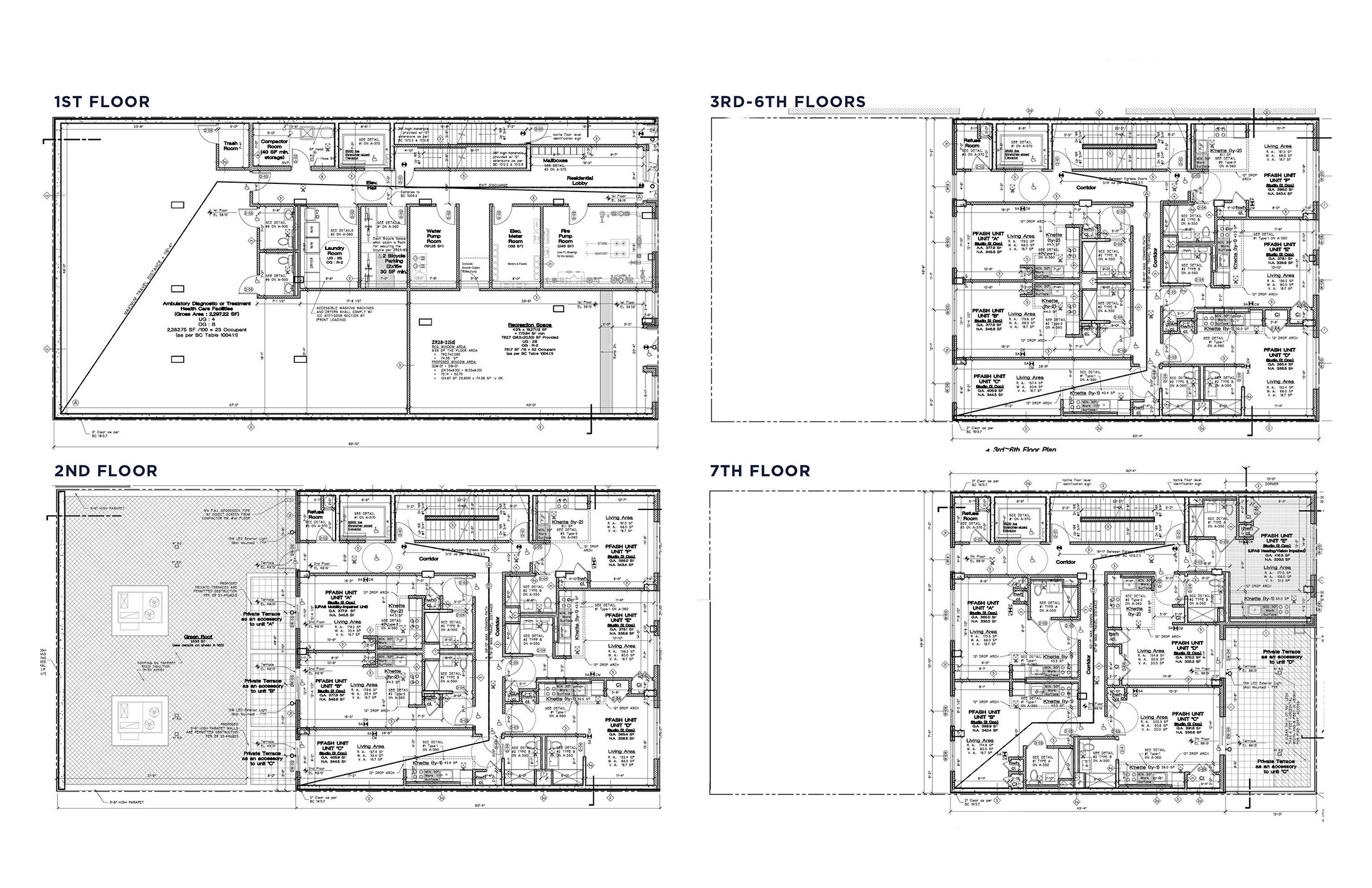
Mid-construction 8-story elevator building slated for senior housing. 25,523 SF mixed-use property, containing 40 residential units and one community facility unit.

Collateral Snapshot

PROPERTY Snapshot

  • 883 Bryant Avenue, upon completion of construction, will be a 25,523 square foot, mixed-use building consisting of 40 AIRS (affordable independent residences for seniors) studio residential units and one 2,121 square foot community facility unit.
  • 8-story, elevator building with amenities such as a shared laundry room, common area Wi-Fi, recreation room, and security cameras.
  • The units will contain hardwood flooring, granite counter tops, white laminate cabinets, stainless steel oven range stovetops, stainless steel refrigerators and dishwasher. Additionally, several units feature patios or balconies.
  • Excellent access to public transportation with the Hunts Point Subway 6 train station just steps away and the Intervale Ave 2, 5 train station within walking distance
  • The property will enjoy the advantages of the forthcoming Metro-North station set to open in 2027, conveniently located just four blocks to the west on Hunts Point Avenue

Auction Details

Bid Deadline: January 16,2024 at 4:00 PM
Auction Date: January 18, 2024 at 2:00 PM

Documents

Description

Mid-construction 8-story elevator building slated for senior housing. 25,523 SF mixed-use property, containing 40 residential units and one community facility unit.

Property Id : 46258
Property Size: 25 ft2

Reviews

zzz
Update Review - pending approval
Your Rating & Review

Similar Listings

11
Foreclosure Sale
For Sale

41 W 36th St.

Mixed-use commercial building consisting of two retail spaces and three office units.
14
Foreclosure Sale
For Sale

2291 7th Avenue

Mixed-use building in prime Harlem, featuring 2 Residential Units, 1 Office Space & 1 ...
11
user image
Foreclosure Sale
Closed

6623 Fort Hamilton Pkwy, Brooklyn, NY 11219

Corner mixed-use building featuring 24, 001 SQF and consisting of 28 residential units plu ...
1
Foreclosure Sale
For Sale

4210 Digney Avenue, Bronx, NY 10466

Coming Soon
7
42-43 147th Street
user image
Foreclosure Sale
Closed

42-43 147th Street

$ 2,850,000
20 unit, 4-story brick building featuring 10 1-bedroom units and 10 studios. Prime Flushin ...
4 17,325 SF
3
user image
Foreclosure Sale
Closed

16 Howard Avenue

4-Story multifamily building in Bedford-Stuyvesant. Building features 8 free market loft u ...
4 12,800 SF
21
Foreclosure Sale
Closed

57 E 55th Street, New York, NY 10022

5-story vacant landmark private club with conversion potential. Former Home of the Friars ...
8
355 Hicks Street
user image
Foreclosure Sale
Closed

355 Hicks Street

$ 145,000,000
The proposed development features 48 residential condos, above a parking area containing 2 ...
204,937 GSF
13
Foreclosure Sale
Closed

25-82 37th St., Astoria, NY 11103

Mixed-use elevator building featuring, 16 residential units, 1 community facility space an ...
12
85 Walker St, New York, NY
user image
Foreclosure Sale
Closed

85 Walker Street #4/5

$ 1,500,000
Unit 4/5: Duplex Penthouse Artist’s Loft. 4,500 SF, with 27-foot ceilings and skylights
4 4,500 SF

Compare Listings